Sale

799 m² Land available in Klapmuts

N/C Corner of R44 and R45, Cape Town

R3.05million

move icon
799 m²
  • Square:799 m²
  • Property Type:Land

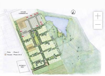
Mount Vernon Residential Estate, nestled in the picturesque Stellenbosch Winelands, Klapmuts, offers a unique investment opportunity for those seeking space, lifestyle, and security. Surrounded by renowned wine farms, tranquil dams, breathtaking mountain views, and endless vineyards, this 24-hour manned security estate provides an ideal blend of country living and urban convenience.

The property is ready to be developed and to build on and all services have been installed on the estate together with a security entrance and secure fencing surrounding this private estate.

The plot in the estate is decently sized, ideal for investors or homebuyers ready to build their dream homes. Whether you’re planning a spacious family retreat or a stylish modern residence.

The plot provides the freedom to create the lifestyle you’ve always envisioned.

The plot faces the mountains with a 270 degree view outlook onto the mountains. The house will be north-facing, nothing will obstruct the view of the house and it's view onto the mountains.

Ideally positioned between the vibrant towns of Paarl and Stellenbosch, the estate combines peaceful suburban living with easy access to major transport routes, schools, shopping hubs, and recreational activities. The central location ensures that daily essentials and leisure activities are always within reach, making it a practical yet serene choice for families, professionals, and investors alike.

The estate prides itself with a club house, with amenities, to be erected and many more facilities to enjoy like an in house "sea".

Mount Vernon Residential Estate offers more than just land – it offers the potential for a life of convenience, natural beauty, and security.

A large plot of land located in the 1st development of the Mount Vernon Estate, ideally located with a view that looks out onto mountains from every side. It's located in a cozy area on and near wine farms and shops to do shopping and other lifestyle activities.

More recent photos and videos can be made available as per request.

Contact Zanelize Lak [removed]

or

K. Hattingh [removed]

N/C Corner of R44 and R45

Want to Become a Real Estate Agent?

We'll help you close more deals.
Sign Up Today
About Us

About Us

SNL Property is your trusted online platform for discovering the ideal property with ease. Designed to support buying, selling, renting, and exploring real estate options, we simplify every step of the journey and connect you to the best opportunities across South Africa. Our goal is to offer a user-friendly and all-inclusive platform for home buyers, sellers, and renters.